Description
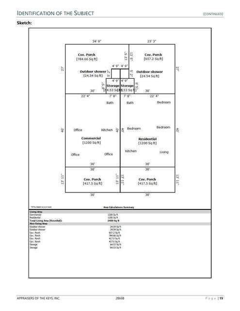
Unique opportunity commercial mixed use (MU) zoning attached to this waterfront legal duplex with 3 bedrooms/1 bathroom (Unit B) and 2 bedrooms/1 bathroom (Unit A). Located in Mixed Use (MU) zoning which allows for many commercial business uses and 28 day vacation rental potential - buyer to verify. The over sized fenced lot @ 34,270' incorporates a boat ramp and protected boat basin. Quick boating access to Bogie Channel is a straight shot out of the canal from here. Shown by appointment only with 24 hour notice.
-
5BEDS
-
0.09ACRES
-
2BATHS
-
01/2 BATHS
-
2,400SQFT
-
$0$/SQFT
School Ratings & Info
Description
Unique opportunity commercial mixed use (MU) zoning attached to this waterfront legal duplex with 3 bedrooms/1 bathroom (Unit B) and 2 bedrooms/1 bathroom (Unit A). Located in Mixed Use (MU) zoning which allows for many commercial business uses and 28 day vacation rental potential - buyer to verify. The over sized fenced lot @ 34,270' incorporates a boat ramp and protected boat basin. Quick boating access to Bogie Channel is a straight shot out of the canal from here. Shown by appointment only with 24 hour notice.
Related Properties
The data relating to real estate for sale on this website comes in part from the Internet Data Exchange program of the Florida Keys MLS, Inc. Real estate listings held by brokerage firms other than Saltwater Real Estate Florida Keys Inc are marked with the MLS Logo and detailed information about them include the name of the listing broker's office.
